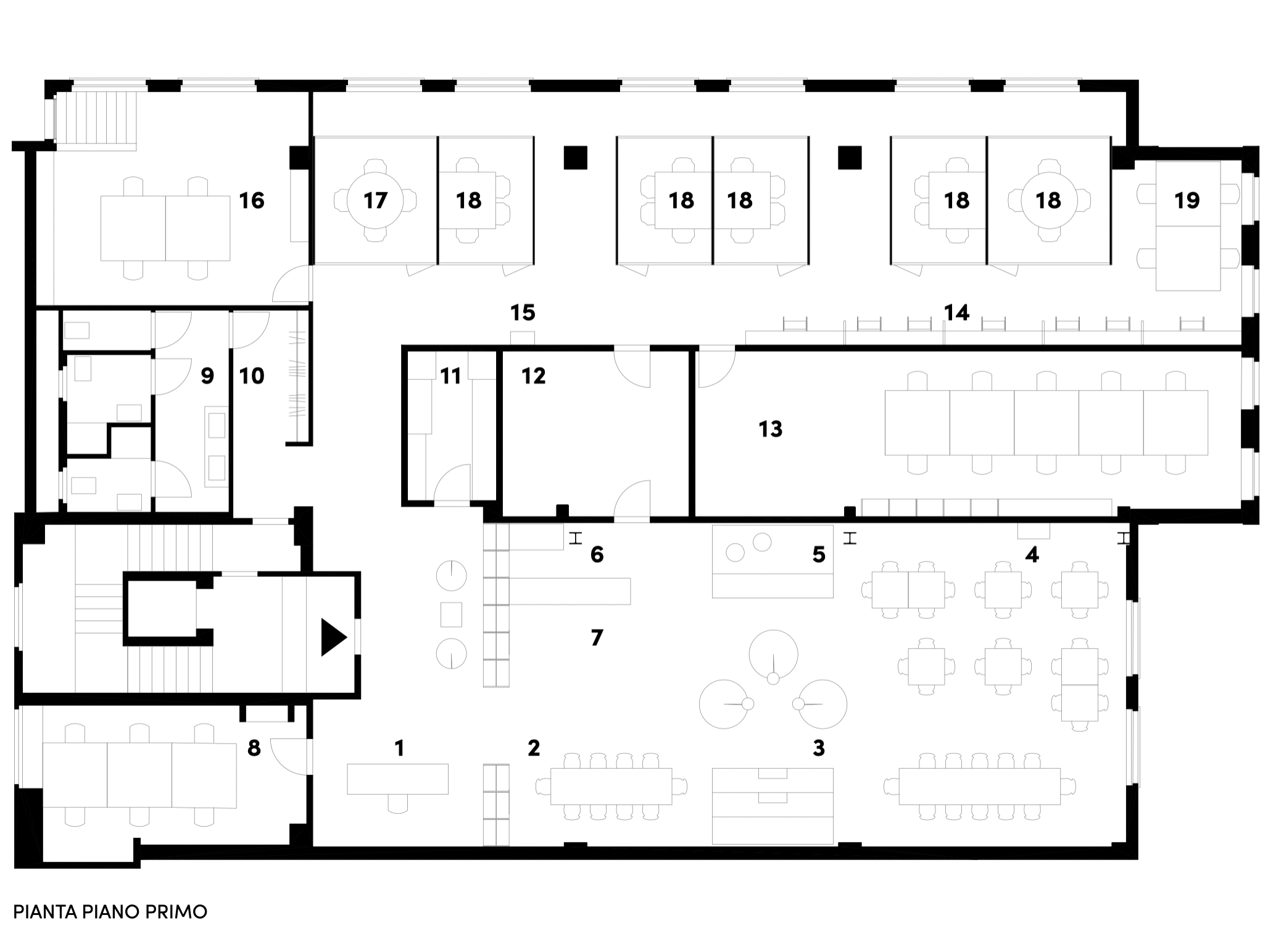
Piano primo
-
1 | Reception
-
2 | Library
-
3 | Social hub
-
4 | Acqua 1°P
-
5 | Palco
-
6 | Raccolta differenziata
-
7 | Caffetteria
-
8 | Beaver house
-
9 | Bagni 1°P
-
10 | Guardaroba 1°P
-
11 | Stanza dei pacchi
-
12 | Cucina 1°P
-
13 | Workshop room
-
14 | Phone booth
-
15 | Acqua 1°P
-
16 | Finance
-
17 | Meeting box 1
-
18 | Meeting box 2-6
-
19 | Flex space
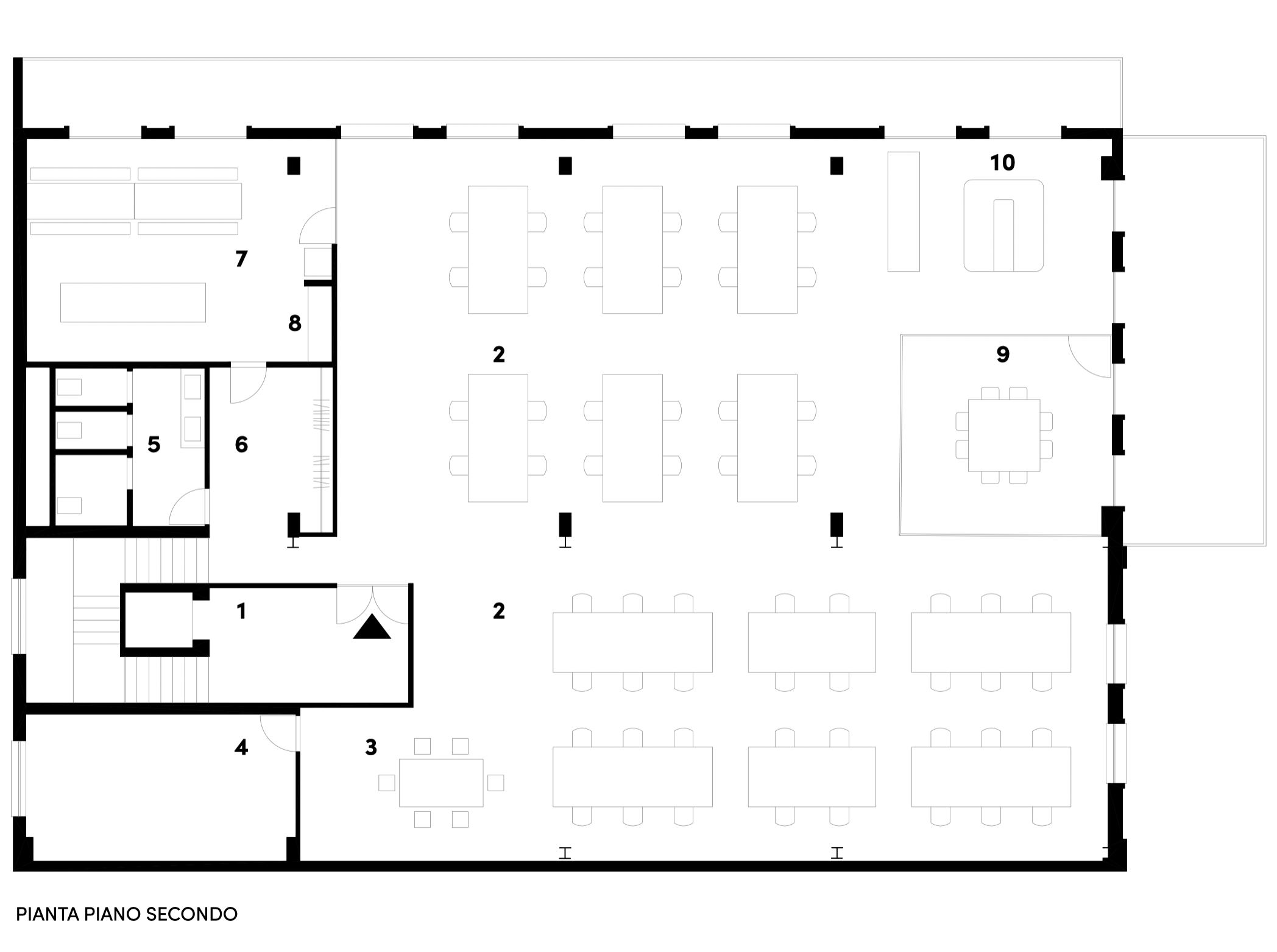
Piano secondo
-
1 | Carrello
-
2 | Scrivania
-
3 | Tavolo alto
-
4 | Sala server
-
5 | Bagni 2°P
-
6 | Guardaroba 2°P
-
7 | Cucina 2°P
-
8 | Acqua 2°P
-
9 | Acquario
-
10 | Divani
Piano terzo